Eine Perle in der Altstadt – Wohnhaus im Herzen von Weiden
Weiden
Objektbeschreibung
- Das Altstadthaus aus dem 16. Jahrhundert lädt zum modernen Wohnen ein.
Mit viel Liebe zum Detail wurde es über die Jahrzehnte gepflegt, modernisiert und behutsam weiterentwickelt – und wartet nun darauf, ein neues Kapitel mit seinen zukünftigen Bewohnern zu beginnen.
Schon beim Betreten spürt man die Großzügigkeit und die durchdachte Struktur des Hauses. Die beiden Appartements im Erdgeschoss bieten vielseitige Möglichkeiten: als Rückzugsort für Gäste oder Familienmitglieder, für erwachsene Kinder oder auch zur teilweisen Vermietung – alles kann, nichts muss.
Die Hauptwohnung erstreckt sich über zwei Etagen und bildet das Herzstück des Hauses.
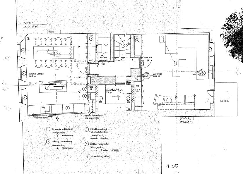
Das 1. Obergeschoss mit dem großzügigen Wohnzimmer (ca. 35 m²) mit Kaminofen
sowie der große Koch- und Essbereich (ebenfalls ca. 35 m²) mit neuwertiger und exklusiver Einbauküche der Firma Eggersmann bieten viel Raum zum geselligen Zusammensein.
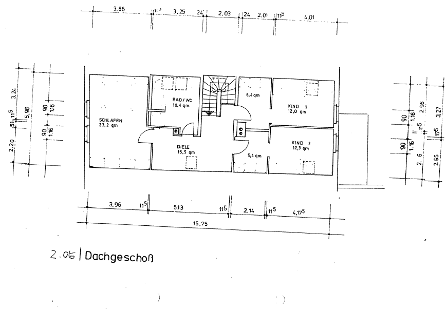
Im 2. Obergeschoss/Dachgeschoss befindet sich der private Rückzugsbereich mit Schlafzimmer, zwei Kinderzimmern (jeweils mit einem Vorraum mit eigenem Wachbecken; ein Detail, das den Alltag spürbar erleichtert) und einem großen, modernen Badezimmer.
Das Haus ist unterkellert und bietet hier mit einer Sauna einen Ort der Ruhe und Entspannung; ein geräumiger Dachboden ist ebenfalls vorhanden.
Die im Jahr 2009 erneuerte Terrasse und der mit dieser über eine Außentreppe verbundene Balkon im 1. Obergeschoss erweitern den Wohnraum nach draußen und schaffen kleine Oasen mitten in der Stadt.
Grundstück:
ca. 159 m², Fl.St.Nr. 237, voll erschlossen
Gebäude:
-Ursprungsbaujahr im 16. Jahrhundert
-eine Kernsanierung erfolgte im Jahr 1989
-eine umfangreiche Modernisierung fand im Jahr 2018 statt
mit Umbau im 1. und 2. OG mit neuen Bädern und
Toiletten sowie einer vollständigen Umgestaltung
des Küchen-, Ess- und Wohnbereiches im 1. OG
sowie der Einbau einer neuen exklusiven Küche
-eine weitere Sanierung mit einem neuen Bad im
Appartement 2 erfolgte im Jahr 2023
-teilunterkellert
-Gas-Zentralheizung, Baujahr Wärmeerzeuger 2014
Endenergieverbrauch des Gebäudes: 63,2 kWh/(m²∙a)
Energieeffizienzklasse: B
Wohnfläche:
Appartement 1 im EG mit ca. 27 m²
Appartement 2 im EG mit ca. 26 m²
Wohnung im 1. und 2. OG/DG mit ca. 170 m²
Gesamtwohnfläche ca. 225 m²
Nutzfläche im KG ca. 60 m²
Aufteilung:
EG
stilvoller Eingangsbereich zu den Appartements und Zugang in die Wohnung sowie ins Kellergeschoss
Appartement 1:
Wohnen/Kochen/Schlafen, Abstellraum, Flur, Sanitäranschlüsse vorhanden
Appartement 2: Wohnen/Kochen/Schlafen, Dusche mit WC, Flur, Terrasse
1.OG
Diele, großes Wohnzimmer mit Zugang zum Balkon, großer Koch- und Essbereich mit hochwertiger Einbauküche (Fa. Eggersmann), Gäste-WC, Garderobe mit Einbauschränken
2.OG/DG
Diele, großes Schlafzimmer, 2 Kinderzimmer – jeweils mit einem Vorraum mit Waschbecken (ein Kinderzimmer mit
einem begehbaren Kleiderschrank), großzügiges Bad mit Wanne und barrierefreier Dusche
KG
Heizraum, 2 Kellerräume, Sauna im Gewölbekeller
Sehr erlesene Ausstattung, welche sich in allen Räumen des Hauses widerspiegelt – mit viel Liebe zum Detail. Hier wurde nicht nur investiert – hier wurde gelebt. Einbauküche, Einbauschränke, Kaminofen u.v.m.
Eine Fassadenneugestaltung wurde im Jahr 2018 durchgeführt.
Ein Pkw-Stellplatz in der Altstadt-Tiefgarage kann angemietet werden.
Ein Haus für Menschen, die das Besondere suchen. Dieses Altstadthaus ist kein Objekt
von der Stange. Es ist ein Zuhause für Menschen, die Raum, Geschichte und Individualität schätzen. Für Familien, die urban leben und dennoch großzügig wohnen möchten.
Für alle, die morgens durch die Altstadt gehen und abends in ihr ganz persönliches
Refugium zurückkehren wollen.
Ein Haus mit Seele. Ein Zuhause mit Zukunft.
Die Immobilie ist frei nach Absprache!
- Referenznummer2005 1.200.000 €
Anfrage für dieses Exposé
Ich interessiere mich für das Objekt 2005!
Pflichtfelder sind mit * gekennzeichnet.
