Haus zum Kauf

Schirmitz

Objektbeschreibung

  • Schöne Doppelhaushälfte mit PKW-Garage
  • Referenznummer2008
  • Objektnutzungfrei
  • Objektpreis295.000,00 €
  • Räume6
  • Grundstücksfläche191.00m2
  • Wohnfläche140.00m2
  • Baujahr1990
  • Kaufpreis: 295.000,00 €

Ort

  • PLZ, Ort92718 Schirmitz
  • LandDeutschland (gesamt)

Preisinfo

  • Provision3,57% inkl. 19% MwSt. vom tatsächlichem Kaufpreis

Ausstattung & Merkmale

  • Balkon/TerrasseTerrasse
  • BodenHolzdielen, Laminat, Parkettboden
  • Kellervoll unterkellert
  • SanitärBad mit Fenster
  • StellplatzGarage
  • Stellplatzzustandgepflegt
  • Parkplätze1

Energie & Versorgung

  • EnergieträgerÖl
  • HeizungsartZentralheizung

Energieausweis (Bedarfsausweis)

  • EnergieausweistypBedarfsausweis
  • GebäudetypWohngebäude
  • Baujahr laut Energieausweis1990
  • Wesentliche EnergieträgerÖl
  • Endenergieverbrauch149,50 kWh/(m2·a)
    Warmwasser enthalten
  • EnergieeffizienzklasseKlasse E

Zusatzinformationen

  • ObjektbeschreibungSchmucke Doppelhaushälfte mit Pkw-Garage im beliebten Wohnort Schirmitz, vor den Toren der Stadt Weiden.
    Zum Haus gehört ein kleiner, leicht zu pflegender Garten. Der Spitzboden ist
    ebenfalls ausgebaut.

    Ausstattung/Zustand:
    die Doppelhaushälfte wurde mit hochwertigen Materialien errichtet
    (Ziegel-Mauerwerk, Vollwärmeschutz …);
    Parkett-, Laminat-, Holzdielen-, PVC- und Fliesenbeläge;
    eine Balkonsanierung ist bereits erfolgt;
    es wurden laufend Renovierungsarbeiten durchgeführt,
    um den gepflegten Zustand des Hauses zu erhalten.

    Das Haus ist im Inneren durch seine Fensteranordnung sehr hell!

    Die Doppelhaushälfte ist frei zum Selbstbezug oder zur Neuvermietung!
  • LagebeschreibungIn Schirmitz gibt es einen Kindergarten und eine Grundschule sowie Bäcker und Metzger, die großen Einkaufsmärkte in Weiden sind in wenigen Minuten erreichbar, auch über einen Radweg der Naab entlang. Die Verkehrsanbindung zur Stadt Weiden ist mit dem öffentlichen Nahverkehr sehr gut.
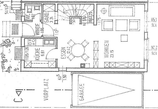
  • RaumaufteilungEG:
    Windfang, Gäste-WC, Garderobe, Küche, Wohn-/Esszimmer, Balkon

    DG:
    Schlafzimmer, 2 Kinderzimmer, Bad mit Wanne, Dusche und WC, Flur

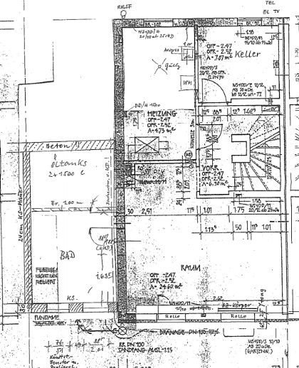
    UG:
    gr. Zimmer mit Zugang zur Terrasse, Bad (mit Fenster) mit Wanne und WC, Heizungs-/Waschraum, Kellerraum, Öltankraum

    Spitzboden:
    Gästezimmer/Büro

    Nebengebäude:
    1 Pkw-Garage
  • TerminvereinbarungBitte vereinbaren Sie einen Termin mit unserem Büro!

Anfrage für dieses Exposé

Ich interessiere mich für das Objekt 2008!

Bitte rufen Sie mich zurück!

Pflichtfelder sind mit * gekennzeichnet.